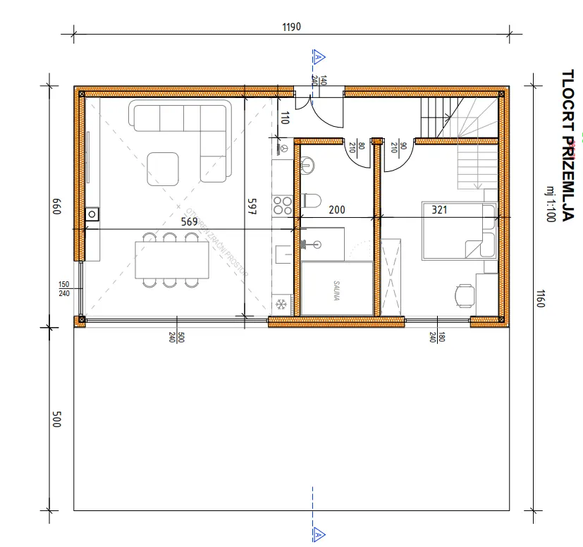
U slikovitom Orešju Okićkom, svega 30 km od Zagreba, nalaze se tri luksuzne kuće ukupne površine od 220 m², s galerijom, spa-kutkom i prostranom terasom s očaravajućim pogledom. Donja etaža ostavlja poseban dojam s dodatnim toaletom, spremištem i velikom prostorijom koja može poslužiti kao privatna teretana, vinski podrum, cigar lounge ili wellness zona. Mirno okruženje uz Park prirode Žumberak – Samoborsko gorje i pažljivo promišljen dizajn čine ovaj projekt savršenim izborom za obiteljski život u miru i luksuzu.
Tri Luksuzne SPA vile Orešje Okićko
Projekt Orešje Okićko, u Jastrebarskom, predstavlja tri identične obiteljske kuće namijenjene ugodnom životu.
Svaka kuća pažljivo je dizajnirana kako bi pružila udobnost, svjetlost i mir, s ukupnom neto stambenom kvadraturom od 220 m².

















