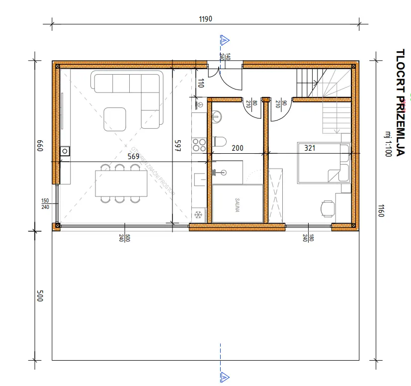
In the picturesque area of Orešje Okićko, just 30 km from Zagreb, lie three luxury villas with a total area of 220 m², each featuring a gallery, private spa corner, and a spacious terrace with captivating views. The lower level offers an additional toilet, storage, and a generous multi-purpose room that can serve as a private gym, wine cellar, cigar lounge, or wellness zone. Surrounded by the Žumberak – Samoborsko gorje Nature Park, and defined by thoughtful architectural design, the project is an ideal choice for family life in an atmosphere of peace and understated luxury.
Three Luxury Spa Villas Orešje Okićko
The Orešje Okićko project in Jastrebarsko features three identical family villas designed for comfortable living. Each home is carefully planned to provide a sense of light, peace, and balance, with a total net living area of 220 m².

















